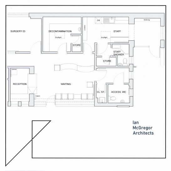
Internal alterations to Bridge of Don Dental to improve reception area and to create additional sugery space.

If you are considering similar works, or would like to discuss any building project, please Contact Us to arrange a free consultation.
Contact Us